Mehr anzeigen zum Thema Beschreibung
Beschreibung
Neuwertige hochwertige Lagerhalle/Produktionshalle mit Büros und Wärmepumpe
Diese moderne Halle, fertig gestellt im Jahr 2019, bietet Ihnen die ideale Lösung für Ihr Lager- Geschäfts- oder Produktionsvorhaben.
Durch die modulare Bauweise ist eine Erweiterung der Halle jederzeit möglich. Maßnahmen hierfür sind bereits bei der Planung berücksichtigt worden.
Mit einer großzügigen Grundstücksgröße von ca. 2.031 m² und einem neuwertigen Zustand, präsentiert sich diese Immobilie als hervorragende Grundlage für Ihr Unternehmen. (Weitere Grundstücksflächen können bei Bedarf zugekauft werden. Sprechen Sie uns einfach an.)
# Highlights:
- Baujahr 2019
- Hochwertige Ausstattung
- Wärmepumpe
- Fußbodenheizung (EG)
- Netzwerk
- Einbauküche
- Automatische Schiebetoranlage
- Elektrisches Sektionaltor ca. 4x4m
----------------------------------------------------------------------------------------------------------------
# Flächen:
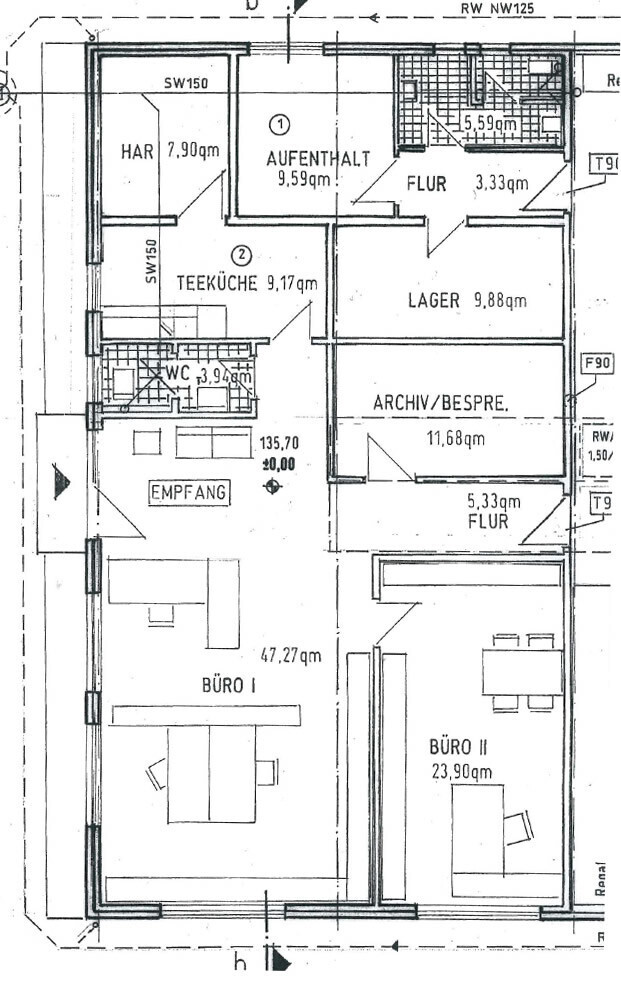
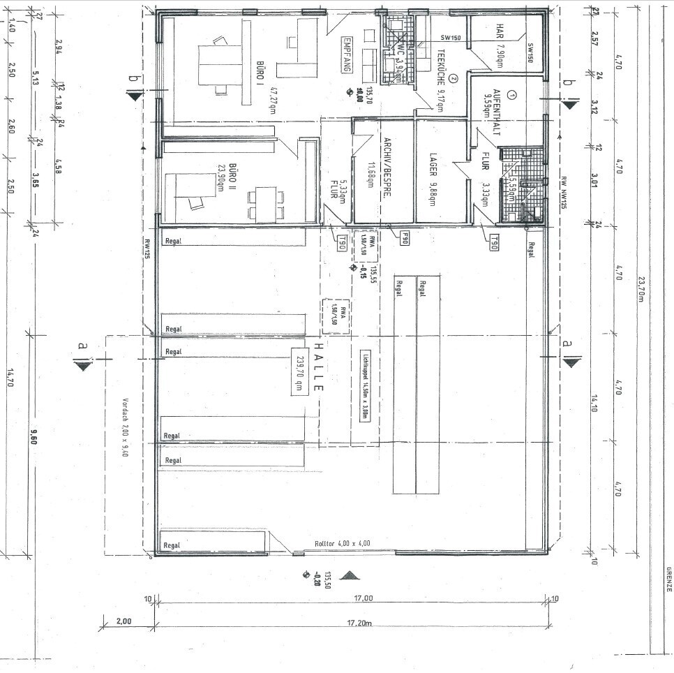
Erdgeschoss:
- Lagerfläche: ca. 240 m²
- Büroflächen: ca. 138 m²
Obergeschoss
- Lager/Abstellflächen: ca. 59 m²
- Büroflächen: ca. 90 m²
Der Standort in Eschweiler/Weisweiler verbindet optimale Verkehrsanbindung mit einer ruhigen Umgebung, die sich perfekt für reibungslose Geschäftstätigkeiten eignet. Die Flexibilität bei der Verfügbarkeit — nach Vereinbarung — erlaubt es Ihnen, Ihre Pläne maßgeschneidert und ohne Verzögerungen zu gestalten.
Entdecken Sie das Potenzial dieser modernen Halle und vereinbaren Sie noch heute einen Besichtigungstermin. Diese Immobilie ist nicht nur ein Platz zum Arbeiten, sondern ein Ort, an dem Ihr Geschäft nachhaltig wachsen kann.
Diese moderne Halle, fertig gestellt im Jahr 2019, bietet Ihnen die ideale Lösung für Ihr Lager- Geschäfts- oder Produktionsvorhaben.
Durch die modulare Bauweise ist eine Erweiterung der Halle jederzeit möglich. Maßnahmen hierfür sind bereits bei der Planung berücksichtigt worden.
Mit einer großzügigen Grundstücksgröße von ca. 2.031 m² und einem neuwertigen Zustand, präsentiert sich diese Immobilie als hervorragende Grundlage für Ihr Unternehmen. (Weitere Grundstücksflächen können bei Bedarf zugekauft werden. Sprechen Sie uns einfach an.)
# Highlights:
- Baujahr 2019
- Hochwertige Ausstattung
- Wärmepumpe
- Fußbodenheizung (EG)
- Netzwerk
- Einbauküche
- Automatische Schiebetoranlage
- Elektrisches Sektionaltor ca. 4x4m
----------------------------------------------------------------------------------------------------------------
# Flächen:
Erdgeschoss:
- Lagerfläche: ca. 240 m²
- Büroflächen: ca. 138 m²
Obergeschoss
- Lager/Abstellflächen: ca. 59 m²
- Büroflächen: ca. 90 m²
Der Standort in Eschweiler/Weisweiler verbindet optimale Verkehrsanbindung mit einer ruhigen Umgebung, die sich perfekt für reibungslose Geschäftstätigkeiten eignet. Die Flexibilität bei der Verfügbarkeit — nach Vereinbarung — erlaubt es Ihnen, Ihre Pläne maßgeschneidert und ohne Verzögerungen zu gestalten.
Entdecken Sie das Potenzial dieser modernen Halle und vereinbaren Sie noch heute einen Besichtigungstermin. Diese Immobilie ist nicht nur ein Platz zum Arbeiten, sondern ein Ort, an dem Ihr Geschäft nachhaltig wachsen kann.
Mehr anzeigen zum Thema Ausstattung
Ausstattung
# Hochwertige Ausstattung
# Wärmepumpe
# Fußbodenheizung EG
# Heizkörper OG
# Automatische Schiebetoranlage
# Elektrisches Sektionaltor ca. 4x4m
# Keramikfliesen
# WC´s und Dusche
# Ausreichend Dachfläche für die Errichtung einer Solaranlage
# Grundstücksgröße ca. 2.031 m² (weitere Flächen verfügbar)
# Erweiterung des Grundstücks möglich durch Zukauf weiterer Grundstücksflächen (Sprechen Sie uns an)
# Wärmepumpe
# Fußbodenheizung EG
# Heizkörper OG
# Automatische Schiebetoranlage
# Elektrisches Sektionaltor ca. 4x4m
# Keramikfliesen
# WC´s und Dusche
# Ausreichend Dachfläche für die Errichtung einer Solaranlage
# Grundstücksgröße ca. 2.031 m² (weitere Flächen verfügbar)
# Erweiterung des Grundstücks möglich durch Zukauf weiterer Grundstücksflächen (Sprechen Sie uns an)
Mehr anzeigen zum Thema Lage
Lage
Die angebotene Halle befindet sich in einer äußerst günstigen Lage in Eschweiler-Weisweiler.
Diese Region zeichnet sich durch eine hervorragende Verkehrsanbindung aus, die Ihnen und Ihrem Geschäft einen entscheidenden Standortvorteil bietet.
Die Autobahn ist lediglich 1 Kilometer entfernt, wodurch eine optimale Erreichbarkeit sowohl für den regionalen als auch überregionalen Transport gewährleistet ist.
Darüber hinaus befindet sich das Zentrum von Eschweiler nur 3 Kilometer entfernt, was den Zugang zu städtischen Annehmlichkeiten wie Einkaufsmöglichkeiten, Gastronomie und weiteren Dienstleistungen erleichtert.
Diese Lage ist ideal für Unternehmen, die Effizienz und eine strategisch günstige Position suchen.
Diese Region zeichnet sich durch eine hervorragende Verkehrsanbindung aus, die Ihnen und Ihrem Geschäft einen entscheidenden Standortvorteil bietet.
Die Autobahn ist lediglich 1 Kilometer entfernt, wodurch eine optimale Erreichbarkeit sowohl für den regionalen als auch überregionalen Transport gewährleistet ist.
Darüber hinaus befindet sich das Zentrum von Eschweiler nur 3 Kilometer entfernt, was den Zugang zu städtischen Annehmlichkeiten wie Einkaufsmöglichkeiten, Gastronomie und weiteren Dienstleistungen erleichtert.
Diese Lage ist ideal für Unternehmen, die Effizienz und eine strategisch günstige Position suchen.
Mehr anzeigen zum Thema Sonstige Angaben
Sonstige Angaben
Hinsichtlich des Objektes ist die Gesellschaft auf die Auskünfte der Verkäufer, Vermieter, Verpächter, Bauherren, Bauträger und Behörden angewiesen. Für die Richtigkeit der Angaben kann keine Haftung übernommen werden. Darüber hinaus kann die Gesellschaft für die Objekte und für die Bonität der Vertragspartner keine Gewähr und keine Haftung übernehmen.
Informationen zur Verarbeitung Ihrer personenbezogenen Daten sowie zu Ihren Rechten erhalten Sie in unserer Datenschutzerklärung auf www.immolan.com.
Wir verarbeiten die Daten zur Erfüllung des Vertrages und können die Daten dazu an Dritte weitergeben.
Des Weiteren weisen wir auf unsere AGB hin. Diese finden Sie auf unserer Homepage unter: www.immolan.com
Informationen zur Verarbeitung Ihrer personenbezogenen Daten sowie zu Ihren Rechten erhalten Sie in unserer Datenschutzerklärung auf www.immolan.com.
Wir verarbeiten die Daten zur Erfüllung des Vertrages und können die Daten dazu an Dritte weitergeben.
Des Weiteren weisen wir auf unsere AGB hin. Diese finden Sie auf unserer Homepage unter: www.immolan.com
Mehr anzeigen zum Thema Sonstige Angaben
Energieausweis
A+
< 30
A
30 - 50
B
50 - 75
C
75 - 100
D
100 - 130
E
130 - 160
F
160 - 200
G
200 - 250
H
> 250
- Nutzungsart
- Gewerbe
- Baujahr lt. Energieausweis
- 2018
- Endenergiebedarf
- 38,8 kWh/(m²a)
- Endenergiebedarf (Wärme)
- 38,8 kWh/(m²a)
- Energieausweis
- Bedarfsausweis
- Energieausweis gültig bis
- 21.01.2035
- Energieeffizienzklasse
- A
- wesentlicher Energieträger
- Umweltwärme